£400,000 Asking Price

14 Lindfield Place
Flat - Retirement

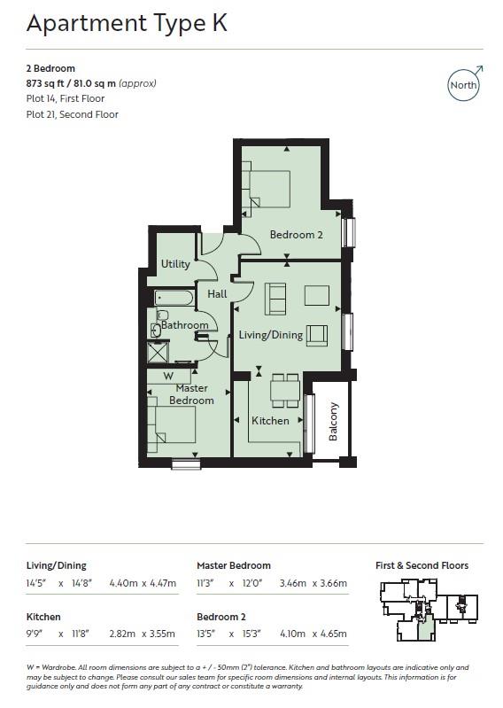
2 Bedrooms
1 Bathrooms
1 Reception Rooms
  • Brand New Roffey Homes Development Prices From £235,000
  • Age Exclusive For Buyers Aged 65 And Over
  • Choice Of 1, 2 Or 3 Bedrooms
  • All With Private Outside Space
  • Underfloor Heating Throughout
  • Quality Integrated Kitchens
  • Stylish Bathrooms & En Suites
  • Ready For Occupation
  • Top Floor Residents Lounge & Sun Terrace
  • On Site Parking / 10-year Labc Warranty

** 60% SOLD **– Ready For Occupation**
Welcome to Lindfield Place, the BRAND-NEW development by AWARD WINNING Roffey Homes, located close to the TOWN CENTRE & SEAFRONT. An AGE EXCLUSIVE mix of just thirty 1, 2 & 3 bedroom APARTMENTS all with private OUTSIDE SPACE and access to a top floor RESIDENTS LOUNGE and south facing SUN TERRACE.

Property Features

Introducing Lindfield Place by Roffey Homes, an age-exclusive development for buyers aged 65 and over which will consist of just 30 apartments. The majority of apartments will have one or two bedrooms, with one three-bedroom home on the top floor. Each will benefit from its own private outside space, by way of a patio, balcony or terrace, and on-site parking facilities will also be available. Each apartment at Lindfield Place will benefit from a high-quality integrated kitchen, stylish bathrooms and en-suites, and spacious open-plan living areas. Other features include underfloor heating throughout, video security entry phone system, a passenger lift to all floors and a communal residents' lounge on the top floor, with a large south-facing sun terrace. The apartments will be leasehold with a term of 150 years and no ground rent payable, service charge costs are available on request. The building will also benefit from a 10-year LABC new build warranty.

Location

Conveniently located within one and a half miles of Worthing town centre and the mainline railway station, Lindfield Place is also just half a mile from the seafront and promenade. Regular bus services pass along Lyndhurst Road, offering easy access to all local surrounding areas.

Roffey Homes

With a heritage spanning more than 60 years and a number of awards to their name, Roffey Homes' pedigree speaks for itself. Renowned for the high quality of their builds and meticulous attention to detail in every aspect of their developments, Roffey Homes construct properties with immense care and maintain a sharp focus on sustainability and efficient running costs.

Required Information

Draft version: 1

Note: These details have been provided by Roffey Homes. Any potential purchaser should instruct their conveyancer to confirm the accuracy.

Property Listed With:

Goring Sales Office

72 Goring Road

Goring-by-Sea

BN14 9DA

T. 01903 520002

Directions to this property

Floor Plan | Flat - Retirement | 14 Lindfield Place | For Sale

Energy Performance Certificate (EPC) | Flat - Retirement | 14 Lindfield Place | For Sale

Energy Performance Certificate (EPC) | Flat - Retirement | 14 Lindfield Place | For Sale

You may also be interested in

14 Photos

£118,000

Guardian Court, Rogate Road, Worthing

Flat - Retirement

1 Beds
1 Bathrooms
Sold - STC

22 Photos

£440,000

20 Lindfield Place

Flat - Retirement

2 Beds
1 Bathrooms

14 Photos

£135,000

Oakland Court, Goring-By-Sea, Worthing

Flat - Retirement

2 Beds
1 Bathrooms
Sold - STC

22 Photos

£300,000

6 Lindfield Place

Flat - Retirement

1 Beds
1 Bathrooms

Want to speak to our experts?

Speak to a member of our team by calling one of our offices, or send us a message using our enquiry form.