£350,000 Asking Price

34 Lindfield Place
Flat - Retirement

2 Bedrooms
1 Bathrooms
1 Reception Rooms
  • Brand New Roffey Homes Development
  • Age Exclusive For Buyers Aged 65 And Over
  • Choice Of 1, 2 Or 3 Bedrooms
  • All With Private Outside Space
  • Underfloor Heating Throughout
  • Quality Integrated Kitchens
  • Stylish Bathrooms & En Suites
  • Ready For Occupation
  • Top Floor Residents Lounge & Sun Terrace
  • On Site Parking / 10-year Labc Warranty

** MOVE IN NOW ** Two bedroom first floor apartment located within the new development of Lindfield Place located close to Worthing town centre & seafront. An age exclusive mix of just thirty apartments all with private outside space and access to a top floor residents lounge and south facing sun terrace.

Property Features

Introducing Lindfield Place by Roffey Homes, an age-exclusive development for buyers aged 65 and over.

Communal Areas

Interior designed entrance lobbies and communal areas. Secure cycle and mobility scooter parking. Access to top floor residents sun lounge and terrace. Video Entryphone system. Lift access to all floors.

Private Front Door

'Secured by Design' approved apartment entrance doors with viewer and security chain.

Entrance Hallway

Premium white single panel doors leading to all rooms;

Kitchen/Lounge/Diner

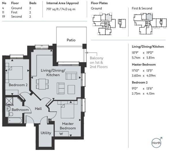
Open plan lounge, kitchen and diner offers a modern living space. The kitchen features a range of wall and base unit cabinetry and is equipped with fully integrated 'Bosch' appliance including a stainless steel oven, ceramic hob and extractor hood, integrated fridge freezer, dishwasher and stainless steel single bowl sink. LED under unit lighting. Hard flooring with underfloor heating throughout. LED downlights to kitchen with pendant lights to the well sized lounge and dining area. TV point.


Size: 3.71 x 7.81 (12'2" x 25'7")

Bedroom One

Well sized double bedroom. Pendant light. TV point. Fitted wardrobes. Door to;


Size: 3.06 x 3.52 (10'0" x 11'6")

En-suite

Shower room with thermostatically controlled shower. Concealed cistern wc. Wash hand basin. LED downlights. Extractor fan. Heated towel rail.

Bedroom Two

Double bedroom. Carpeted throughout. Pendant light. TV point.


Size: 2.79 x 4.64 (9'1" x 15'2")

Bathroom

Bath with shower mixer. Concealed cistern wc. Wash hand basin. LED downlights. Extractor fan. Heated towel rail.

Utility Room

Plumbing for washer/dryer.

Location

Conveniently located within one and a half miles of Worthing town centre and the mainline railway station, Lindfield Place is also just half a mile from the seafront and promenade. Regular bus services pass along Lyndhurst Road, offering easy access to all local surrounding areas.

Roffey Homes

With a heritage spanning more than 60 years and a number of awards to their name, Roffey Homes' pedigree speaks for itself. Renowned for the high quality of their builds and meticulous attention to detail in every aspect of their developments, Roffey Homes construct properties with immense care and maintain a sharp focus on sustainability and efficient running costs.

Required Information

Draft version: 1

The apartments will be leasehold with a term of 150 years and no ground rent payable, service charge costs are available on request. The building will also benefit from a 10-year LABC new build warranty.

Note: These details have been provided by Roffey Homes. Any potential purchaser should instruct their conveyancer to confirm the accuracy.

Property Listed With:

Goring Sales Office

72 Goring Road

Goring-by-Sea

BN14 9DA

T. 01903 520002

Directions to this property

Floor Plan | Flat - Retirement | 34 Lindfield Place | For Sale

Energy Performance Certificate (EPC) | Flat - Retirement | 34 Lindfield Place | For Sale

Energy Performance Certificate (EPC) | Flat - Retirement | 34 Lindfield Place | For Sale

You may also be interested in

Sold - STC

7 Photos

£70,000

Park Road, Worthing, BN11

Flat - Retirement

1 Beds
1 Bathrooms
Sold - STC

14 Photos

£360,000

Triton House, 4 Heene Road, Worthing

Flat - Retirement

2 Beds
2 Bathrooms

20 Photos

£375,000

19, Lindfield Place

Flat - Retirement

2 Beds
1 Bathrooms

11 Photos

£60,000

Penrith Court, Broadwater Street East, Worthing

Flat - Retirement

1 Beds
1 Bathrooms

Want to speak to our experts?

Speak to a member of our team by calling one of our offices, or send us a message using our enquiry form.