£450,000 Price

Dominion Road, Worthing
House - Mid Terrace

4 Bedrooms
2 Bathrooms
2 Reception Rooms
  • Extended Family Home
  • Four Bedrooms
  • En Suite To Bedroom One
  • Off Road Parking
  • 21ft Garage
  • Spacious Kitchen/dining Rm
  • Broadwater Location
  • Viewing Recommended

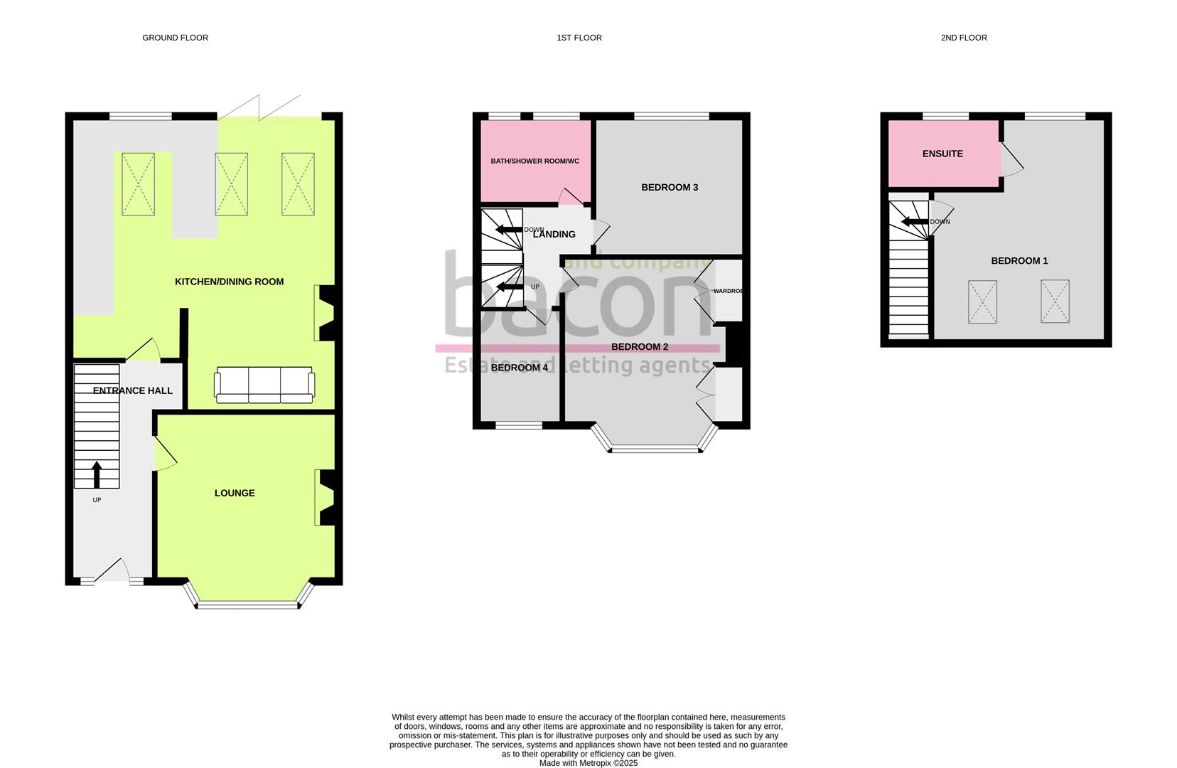
An extended four bedroom two bathroom mid terrace house with private driveway and 21ft garage. Located in the popular Broadwater with local schools, shops, transport links nearby. The accommodation comprises of an entrance hall, lounge, extended kitchen/dining room with part valuted ceiling and bifold doors opening to the rear garden. To the first floor there are three bedrooms and bath/shower room/Wc. To the second floor there is a main bedroom with dual aspect and ensuite shower room/Wc. Externally there is a block paved driveway, 21ft garage and rear garden.

Double glazed front door with matching side obscure glass windows.

Entrance Hall

Attractive herringbone style wood floor. Staircase rising to first floor. Radiator. Wall mounted central heating controls.

Lounge

Herringbone style wood flooring. Picture rail. Double glazed bay window with fitted white shutters. Radiator. Feature fireplace with wooden surround.


Size: 3.98×4.02 (13'0"×13'2")

Extended Kitchen/Dining Room

A skilfully extended room with part vaulted ceiling comprising of an excellent range of work surfaces with cupboards and drawers fitted under. Space for range style cooker. Inset sink. Range of matching all cupboards. Breakfast bar. Inset spotlights. Integrated dishwasher and washing machine. Space for fridge/freezer. Modern column radiator. Double glazed window and Bifold doors overlooking and leading to the rear garden. Three Velux windows. Herringbone style wood floor. Feature fireplace.


Size: 5.85 max x 7.43 max (19'2" max x 24'4" max)

First Floor Landing

Staircase rinsing to the second floor.

Bedroom Two

Double glazed bay window with fitted white shutters. Two built in double wardrobes with cupboards above. Radiator. Picture rail.


Size: 4.47 into bay x 3.07 to chimney (14'7" into bay x

Bedroom Three

Laminate floor. Double glazed window. Radiator. Picture rail.


Size: 3.41×3.60 (11'2"×11'9")

Bedroom Four

Double glazed window with fitted white shutters. Radiator. Picture rail.


Size: 2.67×2.36 (8'9"×7'8")

Bath/Shower Room/Wc

Comprising of a step in shower cubicle with attractive tiled surround, rainwater shower head with additional attachment and glass door, panelled bath with central taps, pedestal wash hand basin and low-level flush WC. Decorative tiled floor. Wall mounted chrome towel radiator. Two double glazed obscure glass windows. Inset spotlights.


Size: 2.59 x 2.38 (8'5" x 7'9")

Second Floor Landing

Door to;

Bedroom One

Double glazed window with fitted white shutters. Door to ensuite. Two velux windows. Access door to eaves space. Radiator. Inset spotlights. Part sloped ceiling.


Size: 3.88×4.90 (12'8"×16'0")

Ensuite Shower Room/Wc

Walking shower with rainwater shower head and additional attachment and glass door. Low-level flash WC. Wall mounted corner wash basin. Double glazed of glass window with white fitted shutters. Tiled walls. Wall mounted chrome towel radiator. Tiled floor.


Size: 2.39×1.15 (7'10"×3'9")

Rear Garden

Paved patio with flower beds. Rear access gate. Personal door to garage.

21ft Garage

With personal door to garden. Power.


Size: 6.55m x 4.67m (21'6 x 15'4)

Private Driveway

Block paved and providing off road parking.

Required Information

Council tax band:

Draft version: 1

Note: These details have been provided by the vendor. Any potential purchaser should instruct their conveyancer to confirm the accuracy.

Property Listed With:

Broadwater Sales Office

14-16 Broadwater Street West

Worthing

BN14 9DA

T. 01903 524000

Directions to this property

Floor Plan | House - Mid Terrace | Dominion Road, Worthing | Sold - Subject to Contract

Energy Performance Certificate (EPC) | House - Mid Terrace | Dominion Road, Worthing | Sold - Subject to Contract

If the Key Facts report has not opened, please click here to open it in a new tab.

You may also be interested in

Sold - STC

14 Photos

£315,000

Lyndhurst Road, Worthing, BN11

House - Mid Terrace

2 Beds
1 Bathrooms

18 Photos

£425,000

Quicksilver Street, Worthing

House - Mid Terrace

3 Beds
2 Bathrooms

18 Photos

£360,000

Clarendon Road, Worthing

House - Mid Terrace

3 Beds
1 Bathrooms
Sold - STC

9 Photos

£335,000

Dominion Road, Broadwater, BN14

House - Mid Terrace

3 Beds
1 Bathrooms

Want to speak to our experts?

Speak to a member of our team by calling one of our offices, or send us a message using our enquiry form.