£350,000 Guide Price

Gratwicke Road, Worthing
House - Terraced

4 Bedrooms
1 Bathrooms
2 Reception Rooms
  • Three Storey Town House
  • Four Bedrooms
  • Central Worthing Location
  • Close To Seafront
  • In Need Of Renovation
  • No Onward Chain
  • Cash Buyers Only

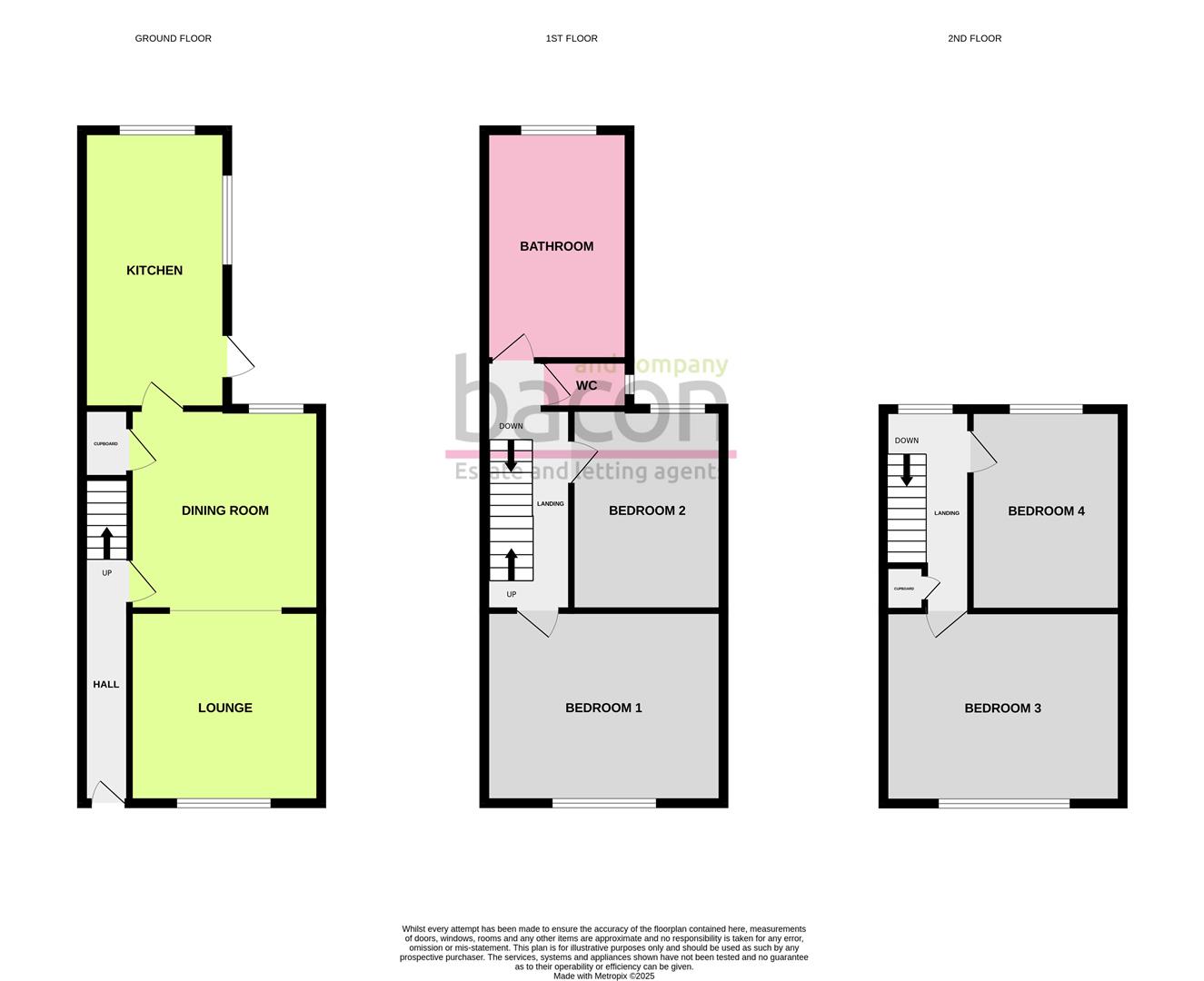
A four bedroom three storey town house located in the heart of Worthing Town centre and therefore close to all of the shops, restaurants and seafront promenade that Worthing has to offer. The accommodation consists of a reception hall, lounge, dining room, kitchen/breakfast room, first floor landing, two first floor bedrooms, bathroom and separate w.c, second floor landing, two second floor bedrooms, front and rear gardens. ** The property is in need of renovation including damp works, so in our opinion the property is only suitable for CASH BUYERS **

Reception Hall

Accessed via a solid wood door. Radiator. Picture rail. Stairs to first floor landing. Door to dining room.


Size: 3.56m x 0.84m (11'8 x 2'9)

Lounge

West aspect via a double glazed window. Fireplace. Radiator. Wood flooring. Coved ceiling. Opening to dining room.


Size: 3.53m x 3.53m (11'7 x 11'7)

Dining Room

East aspect double glazed window. Radiator in decorative casing. Wood flooring. Understairs storage cupboard. Coved ceiling.


Size: 3.71m x 3.63m (12'2 x 11'11)

Kitchen

Fitted suite comprising of a butler sink unit with mixer taps. Areas of rolltop worksurfaces. Matching shelved wall units. Four ring hob having extractor hood over and fitted oven and grill below. Additional appliance spaces. Tiled flooring. Part tiled walls. Radiator in decorative casing. Levelled ceiling with spotlights. East aspect double glazed window. South aspect obscure glass double glazed window. Double glazed door to rear garden.


Size: 5.13m x 2.67m (16'10 x 8'9)

First Floor Landing

Split level. Radiator. Central heating thermostat. Levelled and coved ceiling. Staircase to second floor landing. Doors to all first floor rooms.


Size: 4.09m x 1.60m (13'5 x 5'3)

Bedroom One

West aspect double glazed window. Radiator in decorative casing. Stripped and stained wood floorboards. Feature wall. Levelled and coved ceiling.


Size: 4.60m x 3.51m (15'1 x 11'6)

Bedroom Two

East aspect double glazed window. Radiator. Levelled and coved ceiling.


Size: 3.71m x 2.79m (12'2 x 9'2)

Bathroom/W.C

Suite comprising of a roll top bath having mixer taps with shower attachment. Shower area with mixer taps and showerhead. Circular wash hand basin with mixer taps. Push button WC. Bidet with mixer taps. Tiled flooring. Chrome ladder design radiator. Built in airing cupboard housing the homes wall mounted boiler. Levelled ceiling with spotlights. Obscure glass double glazed window.


Size: 4.06m x 2.54m (13'4 x 8'4)

Separate W.C

Push button WC. Tiled flooring. Levelled ceiling with spotlights. Obscure glass double glazed window.


Size: 1.65m x 0.86m (5'5 x 2'10)

Second Floor Landing

East aspect double glazed window. Built-in storage cupboard. Levelled ceiling.


Size: 3.71m x 1.65m (12'2 x 5'5)

Bedroom Three

West aspect double glazed window. Radiator. Levelled and coved ceiling.


Size: 4.62m x 3.53m (15'2 x 11'7)

Bedroom Four

East aspect double glazed window. Radiator. Levelled and coved ceiling.


Size: 3.71m x 2.84m (12'2 x 9'4)

OUTSIDE

Front Garden

Decorative front garden.

Rear Garden

Paved courtyard style garden with outside water tap and rear pedestrian gate.

Council Tax

Council Tax Band

Property Listed With:

Goring Sales Office

72 Goring Road

Goring-by-Sea

BN14 9DA

T. 01903 520002

Directions to this property

Floor Plan | House - Terraced | Gratwicke Road, Worthing | Sold - Subject to Contract

Energy Performance Certificate (EPC) | House - Terraced | Gratwicke Road, Worthing | Sold - Subject to Contract

You may also be interested in

15 Photos

£325,000

Littlehampton Road, Worthing

House - Terraced

3 Beds
1 Bathrooms
Sold - STC

9 Photos

£300,000

Sompting Road, Broadwater, Worthing, West Sussex

House - Terraced

2 Beds
1 Bathrooms

12 Photos

£365,000

Pavillion Road, Worthing, BN14

House - Terraced

3 Beds
1 Bathrooms
Sold - STC

19 Photos

£475,000

Brighton Road, Worthing

House - Terraced

5 Beds
2 Bathrooms

Want to speak to our experts?

Speak to a member of our team by calling one of our offices, or send us a message using our enquiry form.