£1,000,000 Price

Honeysuckle Lane, Worthing
House - Detached

4 Bedrooms
2 Bathrooms
1 Reception Rooms
  • Favoured High Salvington
  • Third Of An Acre
  • Backing Onto Sussex National Park
  • Stunning Four Bed House
  • Double Garage
  • Plenty Of Parking
  • Two Bathrooms
  • Office

An individual and substantial detached house situated in a delightful tree lined lane in the sought after location of High Salvington being adjacent to the South downs national Park. Standing on approximately a third of an acre this unique property boasts stunning views and features a large west facing garden.

Property overview

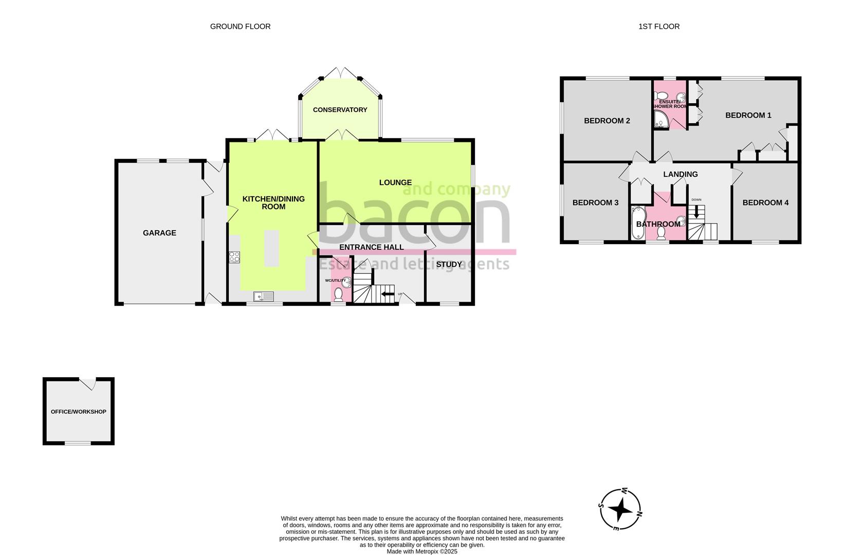
The accommodation briefly comprises: spacious entrance hall, ground floor cloakroom/utility room, study, 24' west facing lounge with log burner and overlooking garden, west facing double glazed conservatory, stunning 24' modern kitchen/breakfast room, four double bedrooms with master bedroom having en-suite, family bathroom/wc. The property also benefits from gas fired central heating and double glazed windows.

Externally the house is set well back from the lane with a lawned front garden and a there is a private drive providing plenty of parking for three /four vehicles. Double width garage. Purpose built detached office. Undoubtedly one of the features of the property is the stunning West facing rear garden. Split into two sections with the main section laid to lawn with natural stone patios. Outbuildings include workshop, garden shed, greenhouse, and summerhouse. The second section is laid to lawn and backs onto woods leading out to downland.

Part glazed composite front door leading to:

Spacious Entrance Hall

Understairs storage cupboard. Two radiators.

Cloakroom/Utility Room

Part tiled. Matching units to kitchen. Roll top work surface with sink unit. Space and plumbing for washing machine and tumble drier. Draw unit with matching wall units. Close coupled wc. Wash hand basin. Double glazed window. Radiator.


Size: 2.44m x2.13m (8' x7')

Study

Radiator. Double glazed window.


Size: 3.71m x 2.08m (12'2 x 6'10 )

Lounge

Fireplace with log burner stove. Three radiators. Double glazed windows overlooking rear garden and double glazed doors leading out to:


Size: 7.47m x 4.27m (24'6 x 14' )

UPVc West facing Conservatory

Double glazed windows overlooking garden. Tiled floor. French doors leading out to garden.


Size: 3.71m x 2.90m (12'2 x 9'6)

Stunning Kitchen/Diner

Part tiled in attractive ceramics. Modern fitted kitchen comprising work surfaces with one and a half bowl single drainer sink unit with mixer taps. Excellent range of base units comprising of cupboards and drawers. Matching eye level wall units with concealed lighting under. Matching pull out larder. Fitted double oven. Induction hob with extractor cooker hood over. Integrated fridge/freezer. Integrated dishwasher. Feature centre island breakfast bar. Two radiators. Double aspect with double glazed windows and french doors out to garden. Further part glazed door giving side access to enclosed passageway.


Size: 8.38m x 4.11m (27'6 x 13'6 )

Stairs from entrance hall leading up to:

First Floor Landing

Walk in storage cupboard housing gas fired boiler. Access to insulated loft space via folding ladder. Power and light.

Master Bedroom

Double glazed window overlooking garden with stunning views. Fitted wardrobes with hanging space and overhead storage. Matching bedside units. Two radiators. Air conditioning unit. Door to:


Size: 7.37m into recess x 3.76m (24'2 into recess x 12'

En-Suite Bathroom

Fully tiled walls and tiled floor. White suite comprising walk in shower cubicle with glazed sliding screen and chrome shower. Vanity unit with wash hand basin and storage cupboard under. Mirror over with shaver point. Close coupled wc. Chrome vertical radiator. Double glazed window.


Size: 2.59m x 1.37m (8'6 x 4'6 )

Bedroom2

Fitted wardrobes with hanging space and overhead storage. Double aspect with double glazed windows overlooking garden with stunning views. Radiator.


Size: 4.47m x 4.42m (14'8 x 14'6 )

Bedroom 3

Double aspect with double glazed windows. Radiator

Bedroom 4

Double glazed windows. Radiator.


Size: 3.73m x 3.20m (12'3 x 10'6 )

Bathroom/wc

Fully tiled in attractive ceramics. Tiled floor. White suite comprising of 'P' shaped bath with chrome shower and glazed screen. Vanity unit with wash hand basin and cupboard under. Mirrored medicine cabinet. Close coupled wc. Vertical chrome radiator. Double glazed window.


Size: 2.74m x 1.68m (9' x 5'6 )

Outside

Standing on a great size plot being approximately third of an acre

Front Gaden

The majority of the garden is laid to lawn. To the front there are two private driveways offering parking for numerous vehicles. and leading to:

Double garage

Pitched roof. Light . Power. Double glazed windows. Personal door giving side access.


Size: 7.32m x 4.11m (24' x 13'6)

Office/Workshop

Brick built. Power and light . Double aspect with double glazed window. Personal door from driveway.

West facing rear garden

Undoubtably one of the features of the property is the large rear garden which is split into two sections. Featuring natural stone patio with the majority laid to lawn with screen hedging, trees and established bushes. Timber workshop. Garden shed. Summerhouse and Greenhouse . The second section is laid to lawn and has direct access onto downland woodland leading onto the South Downs National Park..The property also benefits from underground rain water storage tanks providing thousands of litres of harvested water for the garden.

Required Information

Draft version: 1

Note: These details have been provided by the vendor. Any potential purchaser should instruct their conveyancer to confirm the accuracy.

Property Listed With:

Broadwater Sales Office

14-16 Broadwater Street West

Worthing

BN14 9DA

T. 01903 524000

Directions to this property

Floor Plan | House - Detached | Honeysuckle Lane, Worthing | For Sale

Energy Performance Certificate (EPC) | House - Detached | Honeysuckle Lane, Worthing | For Sale

You may also be interested in

22 Photos

£599,500

Goodwood Road, Worthing

House - Detached

4 Beds
2 Bathrooms

25 Photos

£585,000

Gladiolus Grove, Worthing

House - Detached

4 Beds
2 Bathrooms

16 Photos

£550,000

Offington Lane, Offington, Worthing

House - Detached

3 Beds
1 Bathrooms
Sold - STC

13 Photos

£400,000

Taw Close, Worthing

House - Detached

3 Beds
1 Bathrooms

Want to speak to our experts?

Speak to a member of our team by calling one of our offices, or send us a message using our enquiry form.