£1,025 Per Calendar Month

Toronto Close, Worthing, BN13
Flat - Garden

1 Bedrooms
1 Bathrooms
1 Reception Rooms
  • Well-presented Ground Floor Flat
  • Modern Fitted Kitchen
  • Good-sized Double Bedroom
  • Private Rear Garden
  • Private Entrance
  • Gas Central Heating
  • Double Glazing
  • Available Now

We are delighted to offer this well-presented ground floor flat, ideally positioned in a quiet residential area of Worthing, close to local amenities, bus routes, and with easy access to the A27. The property comprises a bright and spacious living room, a modern fitted kitchen offering ample storage and workspace, an integrated gas hob and electric oven, integrated dishwasher and washing machine, space for a freestanding fridge/freezer. There is also a well-proportioned double bedroom and a contemporary bathroom fitted with a white suite and shower over bath. Further benefits include gas central heating, double glazing throughout, private entrance and a private rear garden. Available Now. EPC Rating: C. Council Tax Band: B. Pets considered!

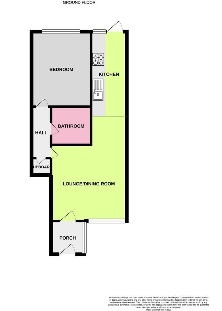
Enclosed Entrance Porch


Size: 1.35 x 0.97 (4'5" x 3'2")

Lounge / Dining Room


Size: 5.16 x 3.43 (16'11" x 11'3")

Kitchen


Size: 4.06 x 1.65 (13'3" x 5'4")

Inner Hall


Size: 2.77 x 0.86 (9'1" x 2'9")

Double Bedroom


Size: 3.66 x 2.82 (12'0" x 9'3")

Bathroom/W.C


Size: 1.85 x 1.80 (6'0" x 5'10")

Private Rear Garden

Property Listed With:

Broadwater Sales Office

14-16 Broadwater Street West

Worthing

BN14 9DA

T. 01903 524000

Directions to this property

Floor Plan | Flat - Garden | Toronto Close, Worthing, BN13 | To Let

Energy Performance Certificate (EPC) | Flat - Garden | Toronto Close, Worthing, BN13 | To Let

Want to speak to our experts?

Speak to a member of our team by calling one of our offices, or send us a message using our enquiry form.