Composer detected issues in your platform: Your Composer dependencies require a PHP version ">= 8.1.0". Flat - Purpose Built | Brighton Road, Lancing, BN15 | For Sale | Bacon and Co

£230,000 Guide Price

Brighton Road, Lancing, BN15
Flat - Purpose Built

2 Bedrooms
1 Bathrooms
1 Reception Rooms
  • Chain Free
  • Sea Views
  • Lancing Seafront
  • Two Bedrooms
  • Garage
  • South Facing Sun Terrace
  • Storage Unit
  • Kitchen And Wet Room
  • 23'1 Living/dining Room
  • Close To Village Centre & Mainline Station

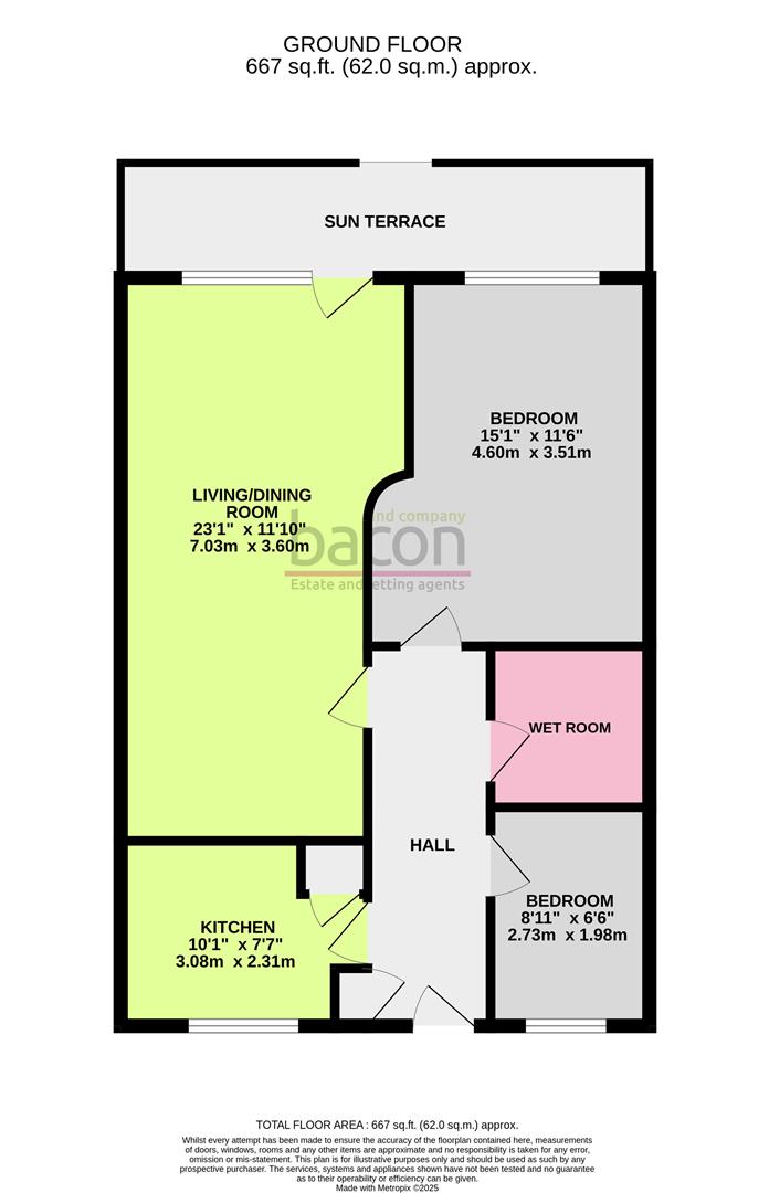
Ground floor, two bedroom purpose built seafront apartment with South facing sun terrace and direct sea views across Beach Green. Briefly the accommodation comprises: entrance hall, lounge/diner, kitchen, two bedrooms and wet room/wc. Externally there is a private sun terrace overlooking communal gardens, garage and separate storage unit. The property is conveniently placed moments from the coastline and is within close proximity to popular local transport, cafes and amenities. The property has been recently carpeted and decorated throughout. CHAIN FREE.

Communal Entrance

Secure door. Hallway with private door leading to:

Entrance Hall

Storage cupboard.

Living/Dining Room

Double glazed window. Night storage heater. Double glazed door to:


Size: 7.04m x 3.61m (23'1 x 11'10)

South Facing Patio

Paved. Low level wall and gate with access to communal garden. Space for table and chairs.

Kitchen

Work surface having inset single drainer ceramic sink with mixer tap and draining board. Space for cooker. Space for fridge/freezer. Space for washing machine. Space for dishwasher. Matching range of cupboards, drawers and eye level wall units. Built in storage cupboard. Glazed window


Size: 3.07m x 2.31m (10'1 x 7'7)

Bedroom One

Double glazed window. South Facing. Night storage heater.


Size: 4.60m x 3.51m (15'1 x 11'6)

Bedroom Two

Glazed window.


Size: 2.72m x 1.98m (8'11 x 6'6)

Wet Room

Electric overhead shower with enclosed surround. Close coupled wc. Vanity unit comprising wash hand basin, mixer tap and cupboards below. Extractor fan. Tiled walls.

Outside

Garage

Located to the rear of the development. Up and over door. Brick built.

Storage Unit

Located to the rear of the building. Brick built. Ideal for bikes an paddle boards.

Lease Information and Council Tax Band

Length of lease: Remainder of 999 year lease
Annual service charge: £1542.13 per annum additional £203 per annum water rates.
Service charge review period:
Annual ground rent: £16 per annum
Ground rent review period:

Council tax band: Band

Draft version:

Note: These details have been provided by the vendor. Any potential purchaser should instruct their conveyancer to confirm the accuracy.

Property Listed With:

Broadwater Sales Office

14-16 Broadwater Street West

Worthing

BN14 9DA

T. 01903 524000

Directions to this property

Floor Plan | Flat - Purpose Built | Brighton Road, Lancing, BN15 | For Sale

Energy Performance Certificate (EPC) | Flat - Purpose Built | Brighton Road, Lancing, BN15 | For Sale

If the Key Facts report has not opened, please click here to open it in a new tab.

You may also be interested in

12 Photos

£225,000

Beverley Court, Bath Road, BN11

Flat - Purpose Built

1 Beds
1 Bathrooms

38 Photos

Bacon bespoke range

£600,000

Calista, Worthing, BN11

Flat - Purpose Built

3 Beds
2 Bathrooms

9 Photos

£210,000

Jupps Lane, Goring, Worthing

Flat - Purpose Built

2 Beds
1 Bathrooms
Sold - STC

8 Photos

£180,000

St. Botolphs Road, Worthing

Flat - Purpose Built

1 Beds
1 Bathrooms

Want to speak to our experts?

Speak to a member of our team by calling one of our offices, or send us a message using our enquiry form.