£699,950 Guide Price

Northfield Road, Thomas-A-Becket, Worthing, West Sussex, BN13 1QW
House - Detached

4 Bedrooms
2 Bathrooms
3 Reception Rooms
  • Delightful Mock Tudor Detached Home
  • Four Spacious Bedrooms
  • Three Reception Rooms
  • Open Plan Kitchen / Dining Space
  • Separate Dual Aspect Snug Lounge
  • Ground Floor Shower Room
  • Separate Utility Room
  • Front / Rear & Side Gardens
  • Popular Thomas-a-becket Catchment Area
  • Original Features Throughout

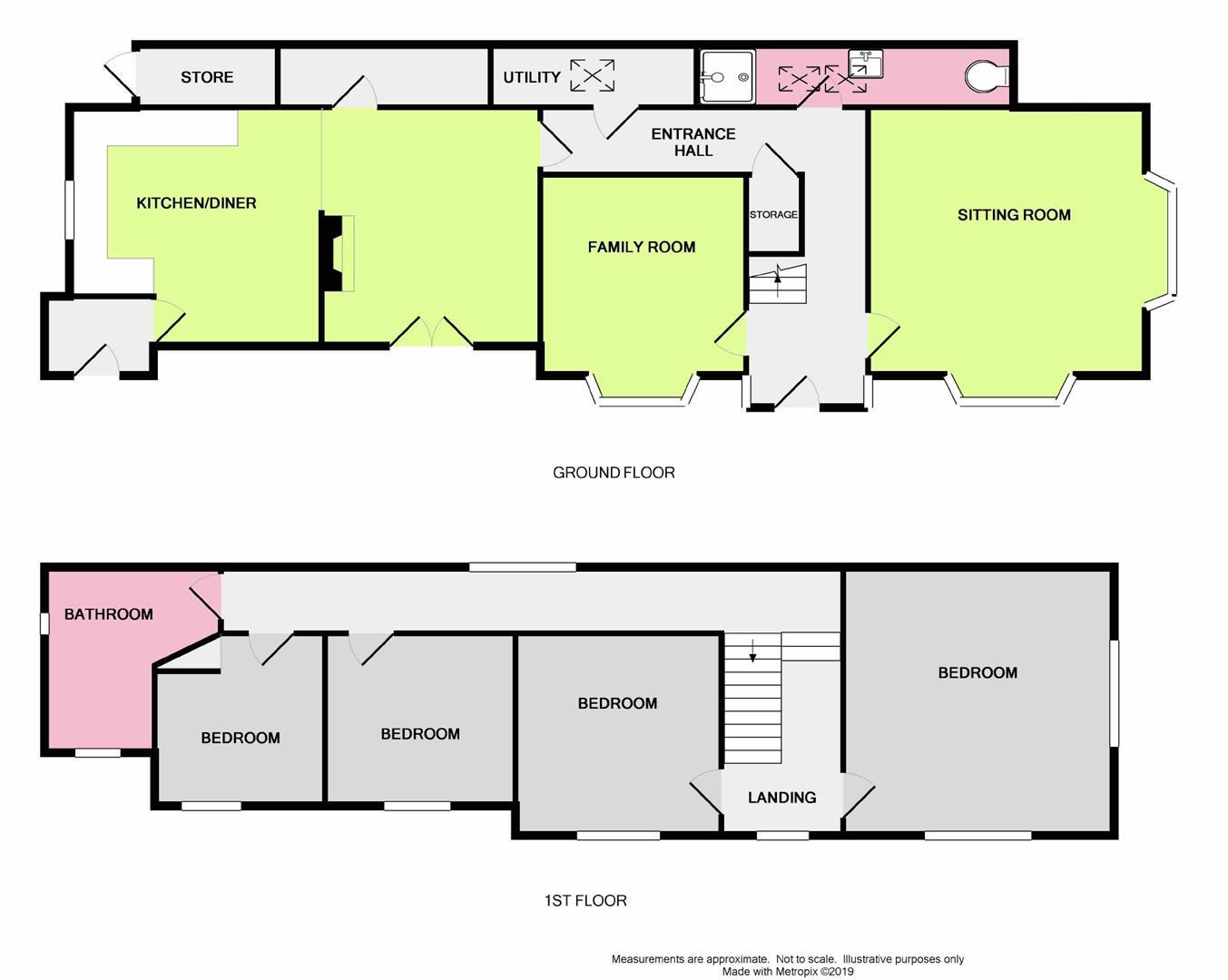
Welcome to Northfield Road - in brief the ground floor consists of a spacious entrance hallway complete with original stained glass windows, there are two spacious reception rooms, the main lounge benefits from from an open fireplace & original sash windows, there is a ground floor shower room / WC separate utility room & larder space, the ground floor is completed with an open plan Kitchen / Dining space perfect for entertaining & opening out into the garden, there is also a boot room to the rear of the property. On the first floor you have a split level landing, three double bedrooms & a home office / study as well as a family bathroom complete with claw foot free-standing bath, there are three separate loft access point perfect for storage.

Externally you have garden to three sides, all having various flower, tree & shrub borders & being enclosed for privacy, there is a parking space & garage having an up & over door.

This is a true gem of a property oozing class & character features throughout, please call today to arrange access.

Entrance Hall

Stripped & painted original wooden floorboards, various power points, original stained glass windows, two radiators, access to understairs storage cupboard housing meters, feature cornicing, ceiling rose, skimmed ceiling.


Size: 5.97m x 1.63m (19'7 x 5'4)

Dual Aspect Sitting Room

Carpeted flooring, two radiators, attractive open fireplace with tiled herth & surround with a wooden mantle, picture rail, two original sash bay windows, feature cornicing, ceiling rose, skimmed ceiling, four wall mounted light fittings.


Size: 5.11m x 4.70m (16'9" x 15'5")

Family Room / Home Office

Carpeted flooring, single radiator, various power points, picture rail, feature gas fireplace with granite hearth, stone surround & mantle, ceiling rose, skimmed ceiling, original sash window.


Size: 4.62m x 3.71m (15'2" x 12'2")

Ground Floor Shower Room

Tiled flooring, part tiled walls, low flush WC, hand wash basin with mixer tap, two chrome ladder style heated towel rail, fitted shower cubicle having an integrated power shower, extractor fan, skimmed ceiling with spotlights, two Velux windows, original sash window.


Size: 6.45m x 0.89m (21'2 x 2'11)

Utility Room

Carpeted tiled flooring, space for washing machine, various power points, skimmed ceiling, Velux window.


Size: 3.07m x 0.89m (10'1 x 2'11)

Kitchen/Dining Room

Dining Area:
Solid wooden flooring, single radiator, attractive feature fireplace with shelving & wooden mantle, skimmed ceiling with coving, double doors leading to front garden.

Kitchen:
Solid wooden flooring, solid wooden square edge work surfaces with solid wooden kitchen units eye & base level, space for free-standing Smeg oven, inset two bowl butler sink unit with mixer tap, fitted wine rack, matching cupboard housing wall hung Baxi boiler, two original sash windows, skimmed ceiling with coving & spotlights.


Size: 7.14m x 4.42m (23'5" x 14'6")

Larder

Tiled flooring, various power points, space for fridge freezer, skimmed ceiling with spotlights.

Boot Room

Tiled flooring, double glazed window, skimmed ceiling, wooden door to garden.


Size: 1.88m x 1.70m (6'2 x 5'7)

First Floor Landing

Recently fitted carpeted flooring, two original sash windows, two loft hatch entry points - one having a drop down ladder, skimmed ceiling with coving, two radiators,


Size: 10.21m x 0.89m (33'6 x 2'11)

Bedroom One

Carpeted flooring, two radiators, two original sash windows, various power points, two fitted double wardrobes with various hanging rails & shelving, textured ceiling with coving.


Size: 5.13m x 4.01m (16'10" x 13'2")

Bedroom Two

Carpeted floor, single radiator, various power points, original sash window, fitted double wardrobe with various hanging rails & shelving, skimmed ceiling with coving.


Size: 4.11m x 3.71m (13'6" x 12'2")

Bedroom Three

Carpeted flooring, various recessed shelving units, single radiator, original sash window, skimmed ceiling with coving.


Size: 3.35m x 2.95m (11'0" x 9'8")

Bedroom Four

Carpeted flooring, various power points, single radiator, fitted wardrobes with various hanging rails & shelving, feature fireplace, textured ceiling with coving.


Size: 3.35m x 2.49m (11'0" x 8'2")

Family Bathroom

Stripped & painted original wooden flooring, free standing claw foot bath with mixer tap & shower attachment, hand wash basin with hot & cold tap, school radiator, low flush WC, original sash window, further window, skimmed ceiling with coving, third loft hatch access.


Size: 3.28m x 2.67m (10'9 x 8'9)

Outside

Rear Garden, Side & Front

Front Garden:
Pathway leading to front door, various flower & shrub borders, patio area, outside lighting, shingle area leading to side garden.

Side Garden:
Mainly laid to shingle with various mature shrub, tree & plant borders, timber built potting shed.

Rear Garden:
Patio area leading to lawned area having various shingle spaces & shrub / flower borders, raised flower beds, outside tap, timber built storage space, gated access to Parking & Garage.

Outside Store

Having power & lighting, vaulted roof.

Garage

Having an up & over door, parking to front, side window.

Property Listed With:

Broadwater Sales Office

14-16 Broadwater Street West

Worthing

BN14 9DA

T. 01903 524000

Directions to this property

Floor Plan | House - Detached | Northfield Road, Thomas-A-Becket, Worthing, West Sussex, BN13 1QW | For Sale

Energy Performance Certificate (EPC) | House - Detached | Northfield Road, Thomas-A-Becket, Worthing, West Sussex, BN13 1QW | For Sale

If the Key Facts report has not opened, please click here to open it in a new tab.

You may also be interested in

31 Photos

£785,000

Fifth Avenue, Charmandean, Worthing

House - Detached

3 Beds
1 Bathrooms
Sold - STC

18 Photos

£410,000

Welland Road, Worthing

House - Detached

3 Beds
2 Bathrooms

19 Photos

£470,000

Malthouse Meadows, Sompting

House - Detached

3 Beds
2 Bathrooms
Sold - STC

28 Photos

£745,000

Grand Avenue, West Worthing, BN11

House - Detached

4 Beds
2 Bathrooms

Want to speak to our experts?

Speak to a member of our team by calling one of our offices, or send us a message using our enquiry form.